物件名非公開
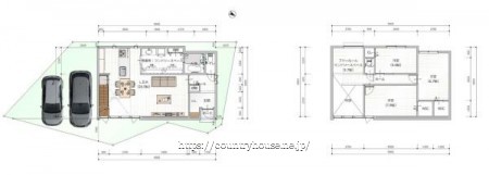
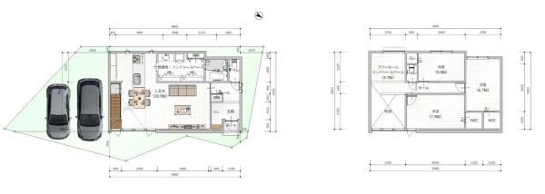
土地37.41坪・3SLDK
登録日/2025年11月07日 更新日/2025年11月15日 次回更新予定日/随時
お問い合わせ番号/ 29924
新築戸建
3,480万円
京都府京田辺市薪西山- 最寄駅
-
- 片町線
- 大住駅徒歩13分
- 間取り/面積
-
- 間取り
- 3SLDK
- 土地面積
- 123.68㎡ / 37.41坪
- 延床面積
- 104.42㎡ / 31.58坪
- 延床面積1F
- -
- 延床面積2F
- -
- 建物構造
- 木造 2階建
ローンシミュレーション
- 物件価格
- 3,480万円
- 金利
- 返済期間
-
年
※物件によってはローン年数が変わる場合がございます。
- 頭金
-
万円
※半角数字でご入力ください。
- ボーナス併用支払い
-
併用する
3480.00万円のうちボーナス返済分
万円
※半角数字でご入力ください。
- 月割返済額
- ボーナス支払い額
(年2回) - 学校区
-
- 小学校区
- 薪小学校 距離:-
- 中学校区
- 田辺中学校 距離:-
- 間取り詳細
-
階数 区分 広さ - 駐車場
-
- 駐車可能台数
- 有-
- 駐車場所
- -
- 駐車料金
- -
- タイプ
- -
- 公共設備
-
- ガス
- 都市ガス
- 水道
- 公営水道
- 汚水
- 公共下水
- 雑排水
- 公共下水
- 接道状況 他
-
- 向
- 一方
- 角地
- -
- 公道
- 東
- 幅員
- 6.00m
- 接面
- -
- 私道
-
- 私道
- -
- 持分
- -
- 面積
- -
- セットバック面積
-
- 状態
- -
- 幅
- -
- 面積
- -
- 現況
- 新築
- 引渡時期
- 相談
--- - 地目
- 宅地
- 地勢
- -
- 用途地域
- 第一種住居地域
- - 建ぺい/容積率
- 60%/200%
- 都市計画
- 市街化区域
- 建築許可理由
- -
- 建築確認番号
- -
- リフォーム
- -
- - リノベーション
- -
- - 土地権利
-
- 権利
- 所有権
- 備考
- -
- 権利金
- -
- 再建築
- -
- 国土法届出
- -
- その他制限事項
- 高度地区
備考:- - 町会費
- --
- 備考
- -
- 取引態様
- -
※金利につきましては各金融機関の審査金利及び融資金利により異なります。
実際の返済額は結果と異なりますので、資産計画の目安としてご利用ください。
詳しいお問い合わせは、こちらよりご相談ください。
一般社団法人山城青年会議所
京田辺市 商工会
京田辺市 商工会









